Печь-камин EcoKamin Родос 800 B Графит
5633d58e96f6
Доставка в Воронеж
Удобство оплаты
Почему звонить в Очаг уже сейчас?
- Единая цена по всей России
- Бесплатная доставка
- Понимаем любой бюджет
- Считаем ВСЕ варианты
- Инструкции и видео для Монтажа
- Доступно, Оперативно, Профессионально
- Более 2 000 монтажей за 17 лет
Примеры работ #Степан_Знает
Видео галерея
Описание
Характеристики
Общие
Производитель:
Страна-производитель:
Россия
Материал отделки:
Материал топки:
- Вермикулит
Тип печи:
Цвет:
Серый
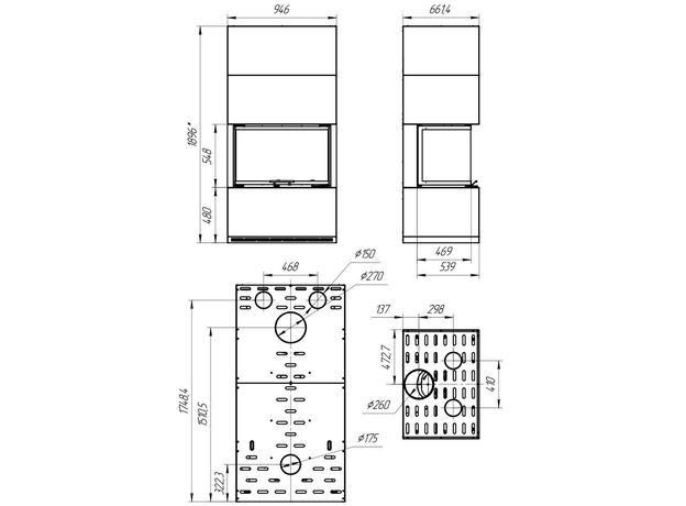
Размеры
Диаметр дымохода:
250 мм
Общая ширина:
946 мм
Общая глубина:
662 мм
Общая высота:
1896 мм
Общий вес:
400 кг
Производительность
Мощность:
16 кВт
КПД:
80%
Площадь отопления:
160 м²
Объем отопления:
400 м³
Использование для отопления:












