Печь-камин ABX Karelie P зеленая с кафельным цоколем
98ae9f222dae
Доставка в Воронеж
Удобство оплаты
Почему звонить в Очаг уже сейчас?
- Единая цена по всей России
- Бесплатная доставка
- Понимаем любой бюджет
- Считаем ВСЕ варианты
- Инструкции и видео для Монтажа
- Доступно, Оперативно, Профессионально
- Более 2 000 монтажей за 17 лет
Примеры работ #Степан_Знает
Видео галерея
Описание
Характеристики
Общие
Производитель:
Страна-производитель:
Чехия
Материал отделки:
Керамика
Материал топки:
- Вермикулит
Размеры
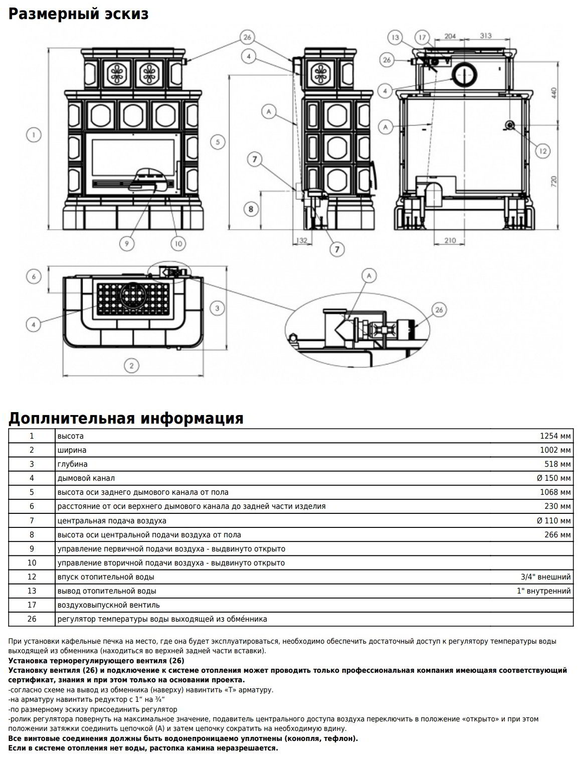
Диаметр дымохода:
150 мм
Общая ширина:
1002 мм
Общая глубина:
518 мм
Общая высота:
1250 мм
Общий вес:
280 кг
Производительность
Мощность:
10 кВт
КПД:
81,6%
Площадь отопления:
100 м²
Объем отопления:
250 м³
Использование для отопления:












