Каминная топка Spartherm Arte U90H
1c08e25f1662
Доставка в Воронеж
Удобство оплаты
Почему звонить в Очаг уже сейчас?
- Единая цена по всей России
- Бесплатная доставка
- Понимаем любой бюджет
- Считаем ВСЕ варианты
- Инструкции и видео для Монтажа
- Доступно, Оперативно, Профессионально
- Более 2 000 монтажей за 17 лет
Примеры работ #Степан_Знает
Видео галерея
Описание
Характеристики
Общие
Производитель:
Страна-производитель:
Германия
Остекление:
Материал корпуса:
Материал топки:
- Керамика
Конструкция топки:
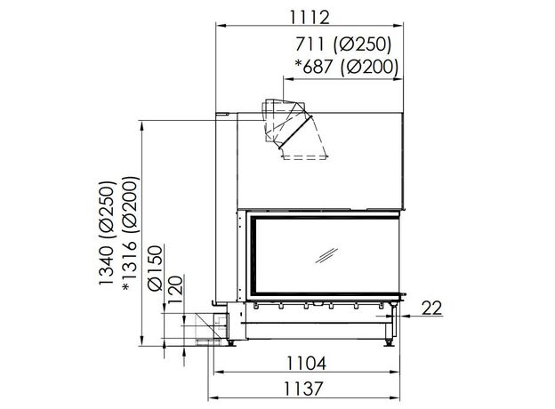
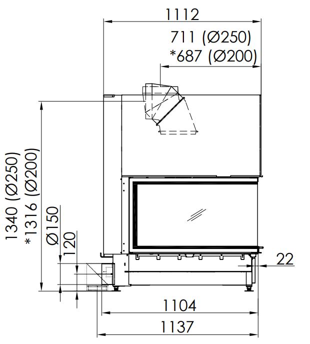
Размеры
Диаметр дымохода:
250 мм
Общая ширина:
556 мм
Общая глубина:
1091 мм
Общая высота:
1340 мм
Общий вес:
393 кг
Ширина рамки:
556 мм
Производительность
Мощность:
13 кВт
КПД:
78%
Площадь отопления:
130 м²
Объем отопления:
325 м³
Использование для отопления:












